Prestigiosa villa fronte lago con parco e pontile privato

In vendita
Verbania (Pallanza lago)
5.900.000 €
Villa
Categoria
570
m2
15
Locali
6
Camere
6
Bagni
2
Posti auto
Descrizione
Verbania, sul Lago Maggiore,località Pallanza in una delle zone più prestigiose e residenziali a ridosso della pista ciclabile, proponiamo in vendita una magnifica Villa d’epoca affacciata direttamente sul Lago Maggiore: questa straordinaria proprietà incarna l’incontro perfetto tra storia, eleganza e comfort moderno.
Ristrutturata integralmente nel 2013, con interventi di altissima qualità, la proprietà ha conservato il fascino architettonico originale, arricchito da dettagli artigianali, materiali pregiati e soluzioni tecniche d’avanguardia. Ogni ambiente è stato progettato per offrire armonia, luce e comfort assoluto.
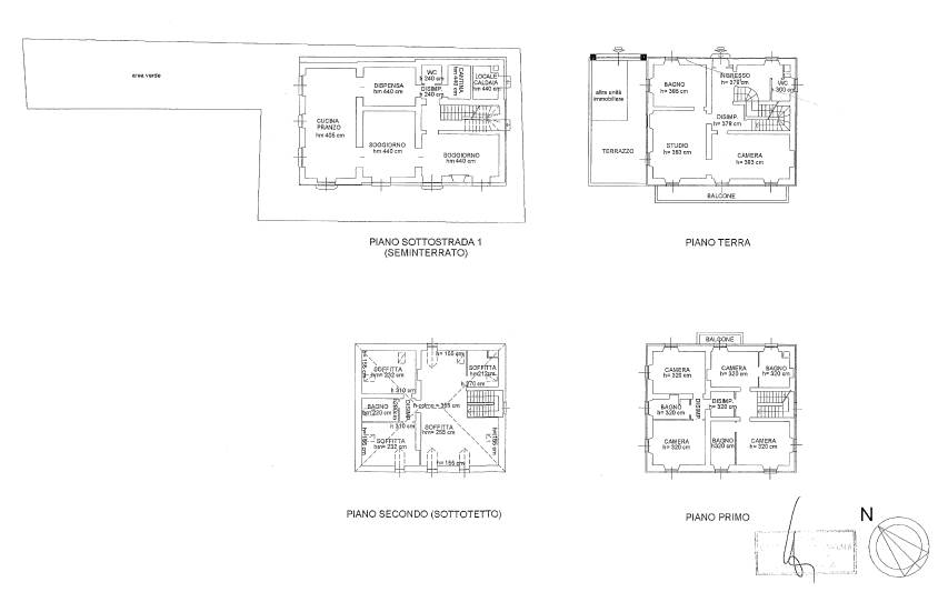
La dimora si sviluppa su tre piani principali ed è immersa in un giardino pianeggiante e perfettamente curato, che conduce dolcemente fino alla riva dotata di un pontile privato per l’ormeggio di imbarcazioni: un privilegio raro sul Lago Maggiore.
Al piano terra si apre una zona giorno elegante e scenografica, con due salotti adiacenti dotati di camino, una sala da pranzo con cucina e un bagno di servizio. Le finiture, tra cui pavimenti in rovere intarsiato, soffitti a volta restaurati e boiserie su misura, conferiscono un carattere unico e senza tempo.
Il primo piano ospita una master suite vista lago, con cabina armadio, bagno in marmo e balcone privato. Il secondo piano accoglie quattro camere da letto e tre bagni, tutti realizzati con materiali di altissimo livello. All’ultimo piano si trova una zona living indipendente, ideale per gli ospiti, con salotto, tavolo da biliardo, camera con bagno e angolo cottura.
Ogni spazio è stato curato nei minimi dettagli: dai marmi pregiati dei bagni agli impianti di ultima generazione, ogni scelta riflette una ricerca costante dell’eccellenza.
Completano la proprietà un’ampia terrazza panoramica con accesso diretto dalla strada e la possibilità di due posti auto. Un dettaglio raro in una posizione così esclusiva.
Avvolta dalla luce naturale e impreziosita da una vista mozzafiato sul lago e sulle montagne, questa villa rappresenta una residenza unica, dove la raffinatezza storica incontra la modernità in un equilibrio perfetto tra bellezza e funzionalità.
www.immobiliaremanzullo.it
Caratteristiche principali
Codice:
V000899
Città:
Verbania (Pallanza lago)
Categoria:
Villa
Locali:
15
Camere:
6
Bagni:
6
Mq:
570
Posti auto:
2
Balconi:
2
Classe energetica:
In fase di valutazione
Stato Immobile:
Ristrutturato
Grado:
Signorile
Posizione:
Lago
Panorama:
Vista Lago
Orientamento:
Sud Est
Lati Liberi:
4
Giardino:
Privato
Arredi:
Semi Arredato
Tipo Soggiorno:
Salone
Tipo Cucina:
Cucinotto
Riscaldamento:
Autonomo
Fonte Energetica:
Metano
Infissi:
Legno Triplo Vetro
Serramenti:
Nuovo
Persiana:
Persiana Legno
Pavim. Giorno:
Personalizzato
Pavim. Notte:
Parquet
Pavim. Cucina:
Personalizzato
Pavim. Bagno:
Marmo
Accessori
Armadio a Muro
Camino
Porta Blindata
Ripostiglio
Video Citofono
Video Sorveglianza
Ti consigliamo anche
In Vendita
Prestigiosa villa con terreno circostante
Prestigiosa villa con terreno circostante
1.700.000 €
Villa
Verbania (Intra centro)
500
m2
12
Locali
8
Camere
4
Bagni
In Vendita
Nuova casa indipendente con giardino e terrazzo
Nuova casa indipendente con giardino e terrazzo
420.000 €
Villa
Verbania (Possaccio)
105
m2
3
Locali
2
Camere
2
Bagni
In Vendita
Villa padronale Vista Lago con parco circostante a Antoliva
Villa padronale Vista Lago con parco circostant...
1.000.000 €
Villa
Verbania (Antoliva)
865
m2
10
Locali
6
Camere
2
Bagni
2
Box
In Vendita
Elegante villa in zona residenziale
Elegante villa in zona residenziale
530.000 €
Villa
Verbania (Biganzolo)
337
m2
11
Locali
4
Camere
4
Bagni
Richiedi informazioni
Invia
Ciao! Come possiamo aiutarti?
Cookie preference