Terreno Edificale per villa contemporanea

In vendita
Verbania (Trobaso) - Via de notaris
140.000 €
Terreno Edificabile
Categoria
750
m2
Descrizione
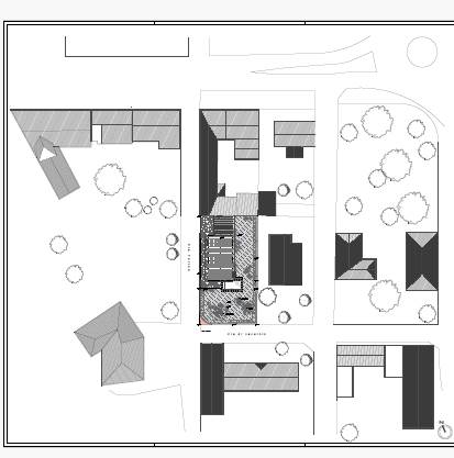
Verbania, sul Lago Maggiore ,nella località di Trobaso , in zona tranquilla e riservata a 5 minuti dal centro di Intra, proponiamo soleggiato terreno edificabile di 750 mq circa, con studio di fattibilità per realizzare villa indipendente di 100 mq circa, oltre a locali accessori con piscina antistante e due posti auto coperti all'interno della proprietà. L'immobile si sviluppa su due piani fuori terra, composto da zona giorno oltre a bagno di servizio al piano terra e zona notte al primo piano con bagno padronale. La villa è caratterizzata da ampie vetrate vista giardino e piscina e terrazzo abitabile con vista aperta.
www.immobiliaremanzullo.it
Caratteristiche principali
Codice:
V000894
Città:
Verbania (Trobaso)
Categoria:
Terreno Edificabile
Locali:
3
Mq:
750
Classe energetica:
Non classificabile
Mappa
Richiedi informazioni
Invia
Ciao! Come possiamo aiutarti?
Cookie preference